|
株式会社シティビルは博多・天神を中心として、最高の立地と高い利便性を誇るオフィス・マンションを提供いたします。 皆様のご希望ご要望を最優先にしたさまざまな空間のご提案と、お家賃や敷金等ご納得いただけるプランをご用意しておりますので、お気軽にご相談ください。 |
|
|
|
|
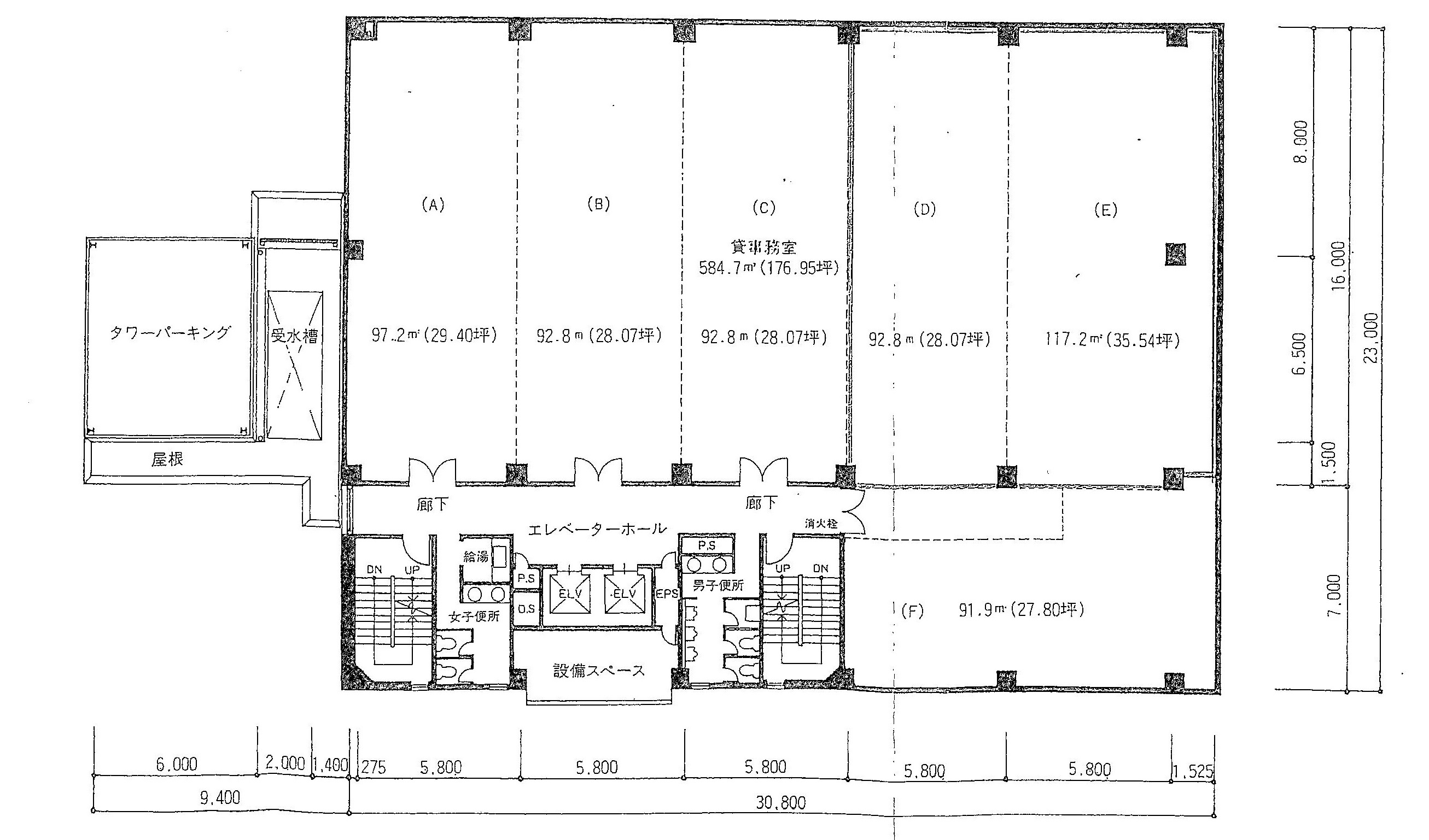
拡大図を別ウィンドウで開く |
概要
| 所在地 | 福岡市博多区博多駅前2-3-7 | 構造 | 鉄骨鉄筋コンクリート造 地上8階 |
|---|
| 延床面積 | 5,669.24㎡ |
| 設計施工 | 大成建設株式会社 |
| 竣工 | 昭和61年2月 |
| 立体駐車場 | 30台 |
お電話でのお問い合わせは下記までお気軽にどうぞ。
